| アゴラ・グローバル紹介のページ | ||||
| MENEW ● 建 物 概 要 ● 建 物 平 面 図 ● プ ロ メ テ ウ ス ・ ホ ー ル ●カフェコーナー(cafe CASTALIA) ● ギ ャ ラ リ ー ● プ ロ ジ ェ ク ト ス ペ ー ス |
||||
![]() |
||||
| ▲TOPへもどる | ||||
| 建 物 概 要 | ||||
| 構 造 : 鉄筋コンクリート造(地上3階建て) 建築面積 : 約1,570u 延べ面積:約2,950u 設 計 : 東京外国語大学施設課[ 基本設計 ] 葛v米設計[ 意匠・構造・設備 ] 施 工 : [ 建 築 ]轄ヲr組 [ 電気設備 ]竃恆纉d気工業 [ 機械設備 ]新菱冷熱工業梶@[ エレベーター ]三菱電機 [ 舞台機構装置 ]潟Tンケン・エンジニアリング [ 舞台音響・映像、同時通訳設備 ]電子システム [ 舞台照明 ]鰹シ村電機製作所 [ 舞台客席固定椅子 ]コクヨマーケティング 施工監理 : 東京外国語大学施設課 |
||||
![]() |
建 物 外 観 |
|||
| ▲TOPへもどる | ||||
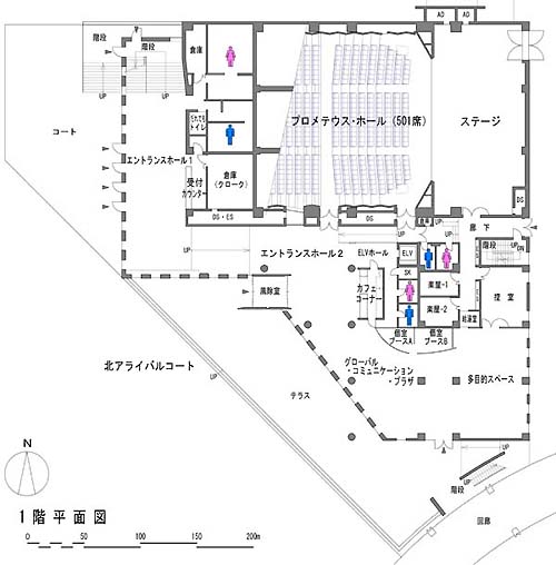
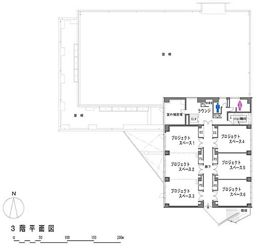
| 建 物 平 面 図 | ||||
![]() |
【1階主要諸室】 | |||
| 風除室 | ||||
| エントランスホール1 | ||||
| エントランスホール2 | ||||
| 受付 | ||||
| グローバル・コミュニケーションプラザ | ||||
| 多目的スペース | ||||
| 個室ブースA | ||||
| 個室ブースB | ||||
| 楽屋−1 | ||||
| 楽屋−2 | ||||
| 控室 | ||||
| プロメテウス・ホール(1階) | ||||
![]() |
【2階主要諸室】 | |||
| ロビー | ||||
| ギャラリー | ||||
| ELVホール | ||||
| プロメテウス・ホール(2階) | ||||
| 東京外語会プラザ | ||||
| アラムナイ文庫 | ||||
| グローバル・インフォメーション・ラウンジ | ||||
| 出版会 | ||||
| 国際日本研究センター | ||||
![]() |
【3階主要諸室】 | |||
| ラウンジ | ||||
| プロジェクトスペース 1 | ||||
| プロジェクトスペース 2 | ||||
| プロジェクトスペース 3 | ||||
| プロジェクトスペース 4 | ||||
| プロジェクトスペース 5 | ||||
| プロジェクトスペース 6 | ||||
| ▲TOPへもどる | ||||
| プロメテウス・ホール | ||||
| 概 要 収容人員 : 501人+車椅子スペース3 面 積 : 客席部 約400u ステージ部 約200u 舞台設備 : 舞台吊物機構装置、舞台照明、舞台音響・映像、同時通訳装置(同時通訳室×1カ所 同時通訳ブース×2カ所) 操 作 室 : 照明調整室、音響調整室 |
||||
![]() 正 面 |
![]() 背 面 |
|||
![]() |
語劇等に配慮し、ステージの奥行きを広く取ってある。 8.4m(緞帳→ホリゾント幕) |
![]() 講演会、セミナー等を主要用途として計画されているが、反響板を使用することによりオーケストラなどの音楽仕様に対応している。 |
||
| ← ピアノについては、ステージに1台準備されている。 | ||||
| プ ロ メ テ ウ ス ・ ホ ー ル 関 係 諸 室 | ||||
音響調整室 |
照明調整室 |
|||
同時通訳室 |
同時通訳ブースA(B) |
|||
楽屋−1 楽屋−1 |
控室講演会等の来賓控室 |
|||
![]() エントランスホール1(受付カウンター) エントランスホール1にある出入り口をメインとすることで 他の施設から正面に受付を配した独立したホールとして の使用が可能となる。
|
![]() ![]() |
|||
| ▲TOPへもどる | ||||
| カフェコーナー(cafe CASTALIA) | ||||
![]() |
アゴラ・グローバル1階に開店したcafe CASTALIAは、福利厚生施設として、大学会館食堂の慢性的な混雑解消と、コミュニティープラザのコミュニティーアイテムのひとつとして設置された。 |
|||
| ▲TOPへもどる | ||||
| ギ ャ ラ リ ー | ||||
![]() |
ホールでの催し物に即したものを展示することにより理解を深める等を目的とした利用や、展示によるイベント等に広い利用を視野に置いたギャラリーとなっている。 | |||
| ▲TOPへもどる | ||||
| プ ロ ジ ェ ク ト ス ペ ー ス | ||||
![]() |
||||
| 西側には、スライディングウォールにより1〜3室として利用出来るフレキシブルなスペースを設置し、東側には、固定間仕切りにより仕切られた3室があり、プロジェクトによる研究のスペースとして用意された。 | ||||
| ▲TOPへもどる | ||||